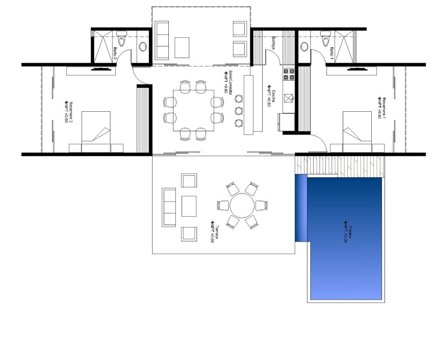
Villas Conkal 01

Detalles del Proyecto

Año: 2012

Tipo: Residencia

Ubicación: Temozón norte, Yucatán

M2: 350.00

Diseño: Manuel Ferrer

Otros Proyectos