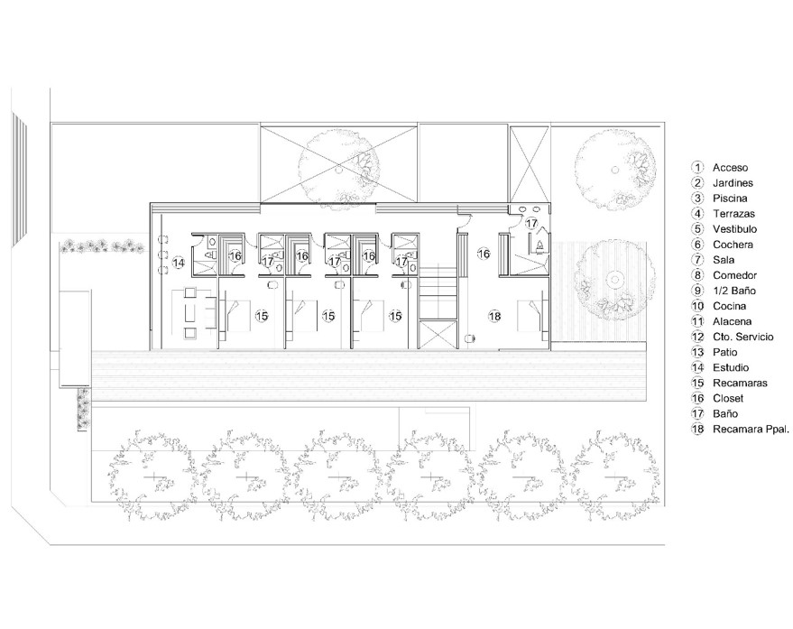
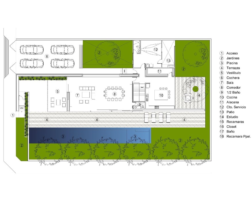
Casa Montes

Detalles del Proyecto

Año: 2016

Tipo: Residencia

Ubicación: Mérida, Yucatán

M2: 650.00

Diseño: Manuel Ferrer

Otros Proyectos